Öffentlichkeitsbeteiligung gem. § 3 Abs. 2 BauGB durch Auslegung in der Gemeinde Ottenbüttel

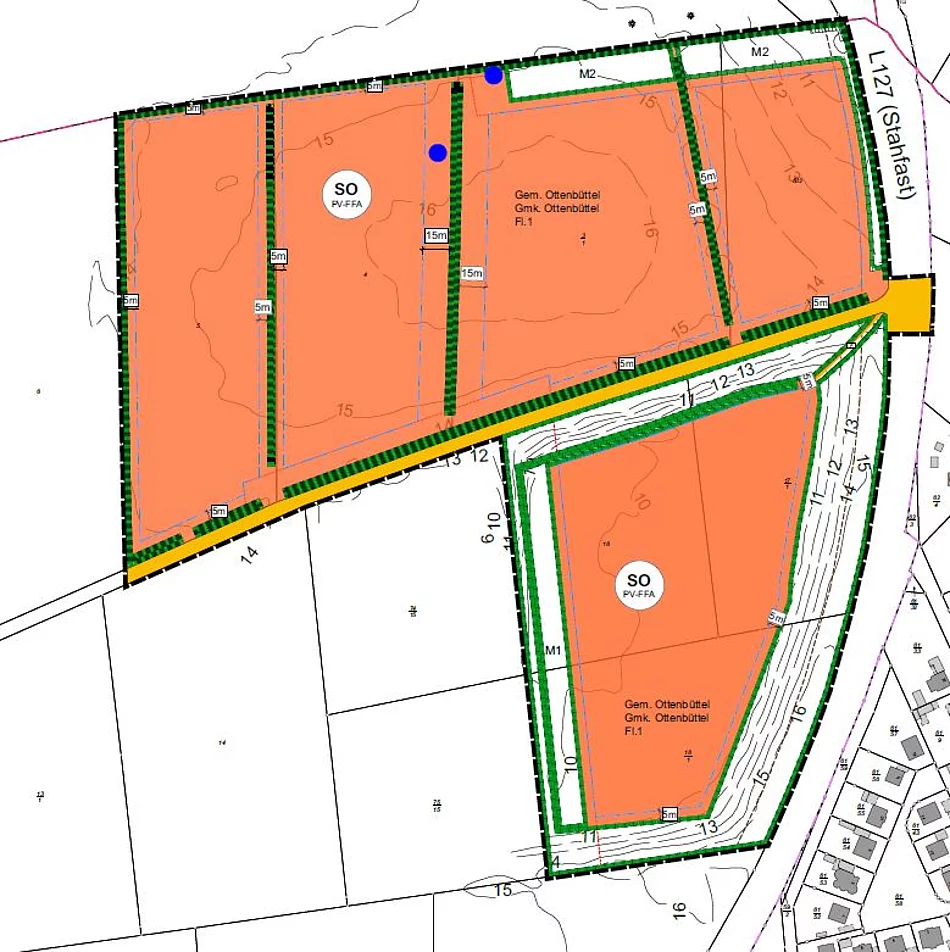
Die öffentliche Auslegung der Bauleitplanungen „2. Änderung des Flächennutzungsplanes der Gemeinde Ottenbüttel für das Gebiet „westlich der Straße Stahfast (L 127), östlich der A 23 und südlich der Gemeindegrenze zur Gemeinde Kaaks“ und vorhabenbezogener Bebauungsplan Nr. 8 „Solarpark Ottenbüttel“ der Gemeinde Ottenbüttel für das Gebiet „westlich der Straße Stahfast (L 127), östlich der A 23 und südlich der Gemeindegrenze zur Gemeinde Kaaks“ nach § 3 Abs. 2 BauGB findet in der Zeit vom Donnerstag, den 27. April 2023 bis Freitag, den 02. Juni 2023 statt. Weitere Informationen finden Sie unter der Rubrik „Amt und Gemeinden / Bauen & Wohnen / aktuelle Beteiligungsverfahren“.
https://www.amt-itzehoe-land.de/amt-und-gemeinden/bauen-wohnen/aktuelle-beteiligungsverfahren